В Streamair  DVX   использованы самые прогрессивные наработки, материалы, программные алгоритмы и электронные компоненты.

 

- шесть температурных датчиков

- два датчика влажности

- два вентилятора с независимым цифровым управлением

- два электрических нагревателя по 1,5 кВт с бесконтактным управлением

- алюминиевый рекуперационный теплообменник с покрытием BlueFin

- карманные фильтры

- пульт управления с графическим дисплеем, с сенсорным управлением

Доступные модели:
 Streamair  DVX-650  производительностью 650 куб.м/ч
 Streamair  DVX-1000 производительностью 1000 куб.м/ч

Внутри привычного глазу параллелепипеда из оцинкованной стали скрываются множество технологий и технических решений.

Низкопрофильный корпус приточно-вытяжной установки высотой 335 мм легко устанавливается в небольшое подпотолочное пространство. Сделан он по принципу сэндвич-панели, с утеплением внутри из 20 мм базальтовой ваты. Это обеспечило отличную термо- и шумоизоляцию. Камеры приточного и вытяжного вентилятора дополнительно звукоизолированы специализированным синтетическим звукопоглотителем толщиной 3 мм. Это позволило на 30% уменьшить шум воздуха в воздуховодах, что дало отличный акустический комфорт при эксплуатации установки.

Рекуперационный теплообменник, изготовленный из алюминия с эпоксиполимерным покрытием BlueFin.

 

В отличие от пленочных или бумажных теплообменников он не дает перетока воздушных потоков, и может использоваться в коммерческих помещениях, фармацевтических объектах и в заведениях общественного питания. А также, это его свойство минимизирует циркуляцию в помещении болезнетворных вирусов и бактерий.

 

Легко очищается и устойчив к агрессивным средам.

Полноценные карманные фильтры 400х200 не дают пыли проникать в помещение и загрязнять теплообменник и лопасти вентиляторов. По сравнению с простыми сетчатыми фильтрами других производителей, в Streamair  DVX    воздух очищается во много раз лучше.

Два вентилятора с цифровым управлением, скорость которых меняется от 0 до 100% с шагом в один процент. Идеальный плавный пуск не создает ударных нагрузок, и перегрузок на линии питания.

Цифровые модули управления задают скорость вращения вентиляторов,  плавно регулируют мощность двух электронагревателей по методу бесконтактного пропорционального регулирования, а также считывают показания четырех температурных датчиков и двух датчиков влажности, и передают данные в центральный вычислительный модуль.

Центральный контроллер производит все математические и аналитические расчеты, и с помощью самоподстраивающихся алгоритмов на основе принципов нечеткой логики рассчитывает необходимые скорости вентиляторов, мощности и время включения вспомогательных электронагревателей. Также он занимается всем обменом информацией между цифровыми модулями управления и высокотехнологичным пультом управления вентиляционной установкой.

Управляет вентиляционной установкой сенсорный полнографический пульт дистанционного управления. Он доступен в двух цветах –  черном и белом. Сдержанная графика основного экрана, а также разработанный эксклюзивно для Streamair  DVX  ультратонкий корпус толщиной всего 18 мм,  позволяет гармонично вписать его в любой интерьер, от хайтека до классики.

Подавляющее большинство ПВУ, во время своей работы принимают за константу влажность воздуха в помещении. Обычно инженерами закладывается величина 80%.

 

Исходя из этого, контроллер ПВУ при понижении температуры приточного воздуха либо начинает включать опциональный предварительный нагреватель, либо, если он не предусмотрен, останавливать с некоторой периодичностью приточный вентилятор, чтобы избежать выпадения конденсата в рекуперационном теплообменнике и его замерзания.

 

Это приводит к тому, что в помещение перестает подаваться необходимое количество воздуха. Он подается с интервалами, причем с понижением температуры интервалы увеличиваются.

Streamair  DVX   – это сложный аппарат с элементами искусственного интеллекта. Основываясь на показаниях множества датчиков влажности и температуры, он постоянно рассчитывает точку выпадения росы.

 

Возможность регулирования скорости вращения каждого из вентиляторов с шагом в 1%, позволяет ему изменять баланс приточного и вытяжного воздуха в заданных пределах, уходя от точки выпадения конденсата. Если разрешенный диапазон исчерпан, то он начинает использовать предварительный нагреватель.

 

В любом случае поток воздуха не прерывается полностью, обеспечивая максимально возможный комфорт.

В режиме Hi Perfomance необходимо настроить только температуру подаваемого воздуха и одну из пяти скоростей приточно-вытяжной установки. Streamair  DVX   будет реализовывать максимальную производительность балансируя в пределах 10% вентиляторами и, если необходимо, помогая встроенным предварительным электрическим нагревателем с электронным управлением.

 

 

Температуру подаваемого в помещение воздуха он будет поддерживать встроенным дополнительным электрическим нагревателем с электронным управлением.

В режиме Eco - Streamair  DVX  перейдет в режим экстремальной экономии энергопотребления. Электронагреватели не будут задействоваться. Центральный контроллер будет рассчитывать и подавать максимальное количество воздуха, балансируя вентиляторами в пределах 30%. Если же этого будет недостаточно, то он будет периодически останавливать приточный вентилятор. Но время остановки не будет фиксированным. Постоянно замеряя влажность и температуру выходящего воздуха, контроллер максимально быстро запустит приток.

В режиме Manual продвинутый пользователь может реализовать практически любой вариант работы ПВУ:

 

- установить дисбаланс вентиляторов в пределах 0-40%,
- отключать каждый из электронагревателей по отдельности, 
- устанавливать температуру подаваемого воздуха от 10 до 30 градусов.

И наконец, если необходимо остановить принудительно любой из вентиляторов, превращая установку в приточную или вытяжную.  В зависимости от разрешенных к использованию компонентов Streamair  DVX  автоматически выберет наиболее правильный режим работы.

Еще одной особенностью Streamair  DVX  является то, что к одному пульту можно подключить до восьми приточно-вытяжных установок. В этом случае все установки будут работать синхронно, передавая все данные в один пульт. Это позволяет нарастить производительность системы, придав ей децентрализованный вид.

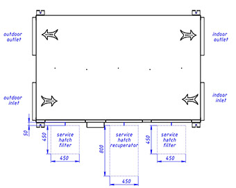
Габаритные размеры Streamair  DVX  (PDF)